Однокомнатная квартира в новостройке 48,00 м2 по ул. Тепличная улица за 14777150 руб.

Адрес
Адрес Тепличная улица
Описание
Цена 14 777 150 р. (307 857 р./м2)
Подать заявку на ипотеку
Количество комнат Однокомнатная
Этаж 8
Этажность дома 16
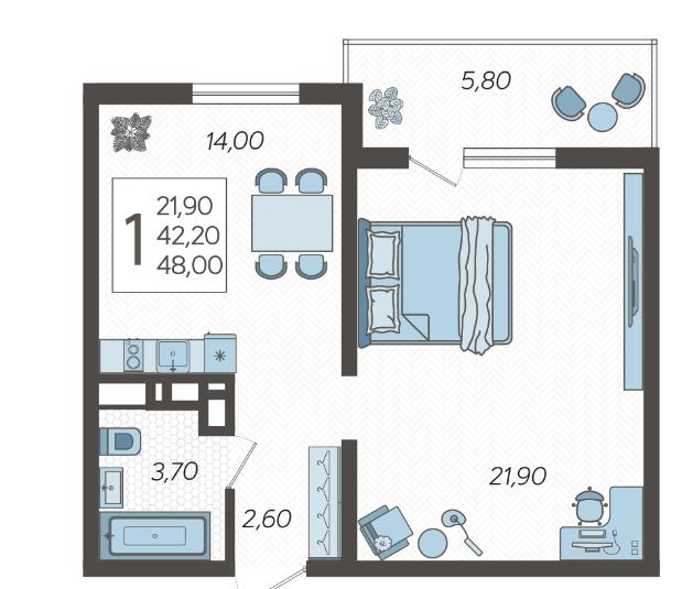
Общая S, м2 48,00
Жилая S, м2 22,00
S кухни, м2 14,00
Представлена к продаже однокомнатная квартира S- 48м.кв «Горный квартал» — мечта о жизни на природе, которая стала реальностью. Жилой комплекс «Горный Квартал»» - горный курорт в большом Сочи в окружении лесов национального парка. Микроклимат, образованный горным ущельем, в сочетании с близостью Курортного проспекта и центра Сочи создают идеальные условия для жизни и отдыха. Жилой комплекс создан не только для отдыха у моря, но и комфортного проживания всей семьей круглый год. ✅Отделка: на ваш выбор - черновая или Whitebox Фасады: вентилируемый навесной фасад. Первые этажи – керамогранит, жилые этажи - композитные панели. Для сохранения фасадного решения предусмотрены корзины для наружных блоков кондиционеров Окна и балконы: Внешняя часть оконных конструкций с ламинацией в тон фасадного решения. Внутренняя часть окон белая. Концепция жилого комплекса – персональный горный курорт не предусматривает остекления лоджий. Ограждения лоджий будут выполнены особо прочным стеклом Триплекс Места общего пользования: Дизайн мест общего пользования поддерживает концепцию проекта и предусматривает декоративные и 3D панели, мягкую зону для встреч или ожидания. Входные двери в МОП – алюминиевый профиль. ✅Локация: «Горный квартал» расположен в Хостинском районе города – курорта Сочи в микрорайоне «Министерские озера» на ул. Тепличная. Удобная транспортная развязка В 5 минутах езды – объездная дорога, которая позволяет быстро добраться в любую часть города Сочи. До ТРЦ «МореМолл» около 15 минут, до Адлера примерно полчаса Благоустроенная территория: Дворы с великолепными беседками и гамаками под теневыми навесами, ландшафтным дизайном с южными цветами, кинотеатром под открытым небом, спортивными площадками и зоной барбекю Легко добраться в любую точку Сочи, 12 минут до пляжа Гимназия №6,44-7 мин на машине ЖД Вокзал-15 мин Наземный паркинг, территория имеет 2 въезда В четырех из шести домов квартала на первых этажах расположатся объекты социальной, бытовой и коммерческой инфраструктуры. - Территория жилого комплекса огорожена, находится под видеонаблюдением; - IP-домофон; - Мобильное приложение - удаленное управление домом и взаимодействие с управляющей компанией; - Объекты образования. На территории жилого микрорайона «Министерские озера» в 2023 году началось строительство общеобразовательной школы на 1100 мест; - Безбарьерная среда; - Зона для выгула домашних животных. ✅Оформление: —Все виды льготных программ по ипотеке; — бесплатное бронирование и юридическое сопровождение сделки; — помощь в одобрении ипотеки под низкий процент - 🎁консультация дизайнера в подарок Звоните! id: 32070
Квартира в новостройке в Санкт-Петербурге
Дата 01.07.2025 23:19:00
Объявление № 22715190
Дата подачи:
2 июля 2025 г. 3:19
Дата обновления:
2 июля 2025 г. 3:19
Просмотров 14 Хотите продать быстрее?

Продавец
Агентство недвижимости:
Шкода Надежда Анатольевна
email: shckoda.nad@yandex.ru
Показать номер телефона
Пожаловаться
Комментарии:
Добавить